物流园区是大型的货物集散地,园区内会存在大量货车同时通行和聚集;同时物流园区若集聚大量物流企业,势必会产生大量的人流与客车流,导致物流园区的交通组织更为复杂。如果不重视物流园区的内部交通设计,将导致物流园区内部交通秩序混乱、安全性差、效率低、景观与设施布置协调性差等现象的发生。因此物流园区专项物流交通规划组织十分重要。
在物流园区规划中,与民用建筑规划不同,物流园功能较为单一,反之交通系统较民用建筑更为复杂,作为园区骨骼,交通系统更是物流园区的核心,高质量的交通组织方案,是最高效运作的保障。
物流园区的交通设计包括园区内部交通设计与园区内外衔接交通设计。通过对物流园区进行交通设计,使物流园区能够提供安全、通畅、环保、便捷、效率的交通服务,从而吸引物流企业入驻。
规划组织主要遵循物流通畅、运距短捷,人流方便、确保安全几大原则。
1. 满足物流与人流的交通需求
园区运输车辆交通流量大,同时搬运,装卸,管理人员流量也大,根据仓库功能分区不同,人员与车辆可能存在交叉的可能,规划应确保物流园区内的货物运输和人员流动能够高效、安全地进行。
同时办公人员的客车交通也应与货车交通系统分别设计,做到客货分流,在车行系统上避免货车流与客车流的相互干扰。货车的交通组织不仅要避免与行人、非机动车及小汽车之间的相互干扰,还要尽量减少货车之间相互的冲突。
2. 物流园区总体布局相协调
交通系统规划应与园区的功能分区、产业布局和建筑布局相协调,形成一个和谐统一的整体。
物流园区仓库布置方式通常为矩形布置,且会最大限度利用土地,为满足建筑防火规范,设计会在至少建筑两个长边设置消防车道,所以交通布置受限于仓库布置。
通常园区交通系统为枝状式、网格式、综合式布局。
枝状式布局是园区各功能区与园区内部主要道路平型布局,使园区与园区外道路、功能区与园区内部主要道路贴近,有利于交通基础设施资源的充分利用,此中布局形式适合于货运服务型物流园区,包括空港物流园区、海港物流园区、陆港物流园区等,如下图:

网格式布局是园区内采用网格式道路作为交通的骨架,园区各功能分区分别在区内主要道路两侧布置,网状式布局可以使功能具有最大限度的可发展性和可替换性,此形式主要适用于生产服务型和商贸服务型物流园区,如下图:

综合式布局是指将区内各功能区与园区内部道路或者城市道路更灵活地结合布置,主要遵循自然环境的变化来组织空间,一般用于综合服务型物流园区,规模可大可小,如下图:

3. 体现动态规划的思想
考虑到园区未来的发展和变化,在有条件的情况下规划应尽量具有灵活性和可调整性,以适应未来的物流需求。
4. 易于交通组织与管理
规划应使交通组织和管理更加简便高效,降低运营成本和提高管理效率,出口与入口尽量分离,进出口分别设置出入管理系统。
1. 入口与出口设计:
根据物流园的规模和交通流量,合理规划入口与出口的数量和位置,确保车辆进出的顺畅和高效,设计合理的进出道口宽度和车道数量,以满足不同车型的通行需求。
场地出入口不宜少于2个,兼做场地消防出入口,场地出入口设置位置应结合场地周边市政道路交通环境,物流通道主出入口应避开次干道,防止物流排队等候造成市政交通拥堵。
2. 道路系统规划:
设计合理的道路网络,确保物流园内各个区域间的连接畅通。
考虑道路宽度、道路标线、减速带、交通信号灯等因素,提高车辆通行的安全性和效率。
3. 停车场规划:
根据物流园的规模和需求,合理规划停车场的位置和容量。确保停车场布局便于货物的装卸和配送。
停车位考虑设置充电桩等配套设施,以满足新能源车辆的需求。
停车方式包含平行式、斜列式、垂直式


4. 竖向规划:
综合考虑道路两侧用地的出入口、排水、原始地貌、地下管线衔接、跨越桥梁等因素,进行道路竖向规划。
满足具体项目的工艺使用要求,同时确保地面自然排水坡度不宜小于0.3%,同时,物流通道与消防通道兼容,道路纵向坡度不小于3‰,不大于8%,转弯半径大于9m。
5. 加油加气站预留及布局:
根据园区的需求和规划,合理设置加油加气站的位置和数量。大型园区考虑预留未来加油加气站的建设空间,以适应园区未来的发展需求。
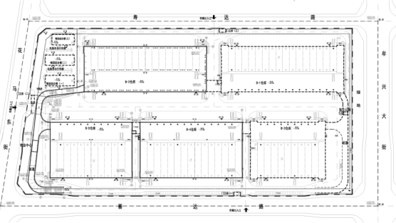
1. 单层物流园区交通组织

如图园区采用网格布局,东西两侧分别设置两个出入口,西侧为主入口连接主干道,东侧为次入口连接次干道。
园区主要通道宽18m,主要通道左右两侧分别预留15m宽卸货停车区,两栋仓库之间长边间距达到48m;次要通道宽9m,兼做消防通道,仓库均设置环形消防车道,满足消防要求,利用园区异形边角设置货车临时停车区以及小车停车位,规避了人行及小车对货运的干扰,最大限度地利用了现有场地,且进出货通道分别通过不同的出入口连接,高效地组织了园区货物流线。
2. 双层物流园区交通组织

双层物流园区交通组织相较于单层物流园区更为复杂,需考虑仓库首层交通与装卸,同时需考虑二层交通与装卸。
如图普洛斯物流园,园区主要通道宽度15m,主要通道距离仓库月台15m为卸货停车区,园区次要通道宽度9m,二层通过车道坡道连通,二层平台落柱在一层不能对一层的交通及消防产生阻挡和影响,坡道与次要通道连接,不影响主要通道装卸与交通,沿次要通道布置小型停车位。二层为退台式仓库,采用首层局部屋顶作为货运通道,形成双首层仓库概念,提高二层仓库独立使用出租价值,仓库分区以及出租更为灵活多变。
《赛宁创新(成都)》
