外形与传统飞机相似,依靠固定机翼产生升力,需跑道或弹射起飞,续航时间长(1-10小时以上),适用于长距离侦查、测绘等任务
单旋翼直升机:主旋翼提供升力,尾翼控制方向,载重能力强,多用于物资运输或特殊任务
结合多旋翼与固定翼优势,可垂直起降并长航时巡航,用于工业巡检、军事侦察等。
无人飞艇:依靠轻于空气的气体浮力飞行
伞翼无人机:通过伞状结构产生升力
扑翼无人机:仿鸟类翅膀运动,适用于隐蔽侦察等场景
变模态无人机:起飞时呈旋翼模式,巡航时切换为固定翼模式

(大型固定翼无人机-翼龙-3侦察无人机)

(固定翼无人机-翼龙-2H气象型无人机)

(多旋翼无人机-TRV-150货运无人机)

(多旋翼无人机-MQ-AL4农业植保无人机)
(
多旋翼小型无人机-DJI air 3s无人机)
不同平台构型无人机对应的尺寸也不尽相同,通常固定翼无人机尺寸较大,多旋翼无人机则相对较小。
固定翼无人机多存在于军用无人机,例如土耳其“猎犬”无人机(电子对抗无人机)尺寸数据 翼展8.9米,机长6.9米,机高1.7米;美国RQ-4“全球鹰”(侦察无人机)机长约13.5米,机高4.63米,翼展超过35米;美国MQ-9“死神”(察打一体无人机)机长 11米,翼展 20 米,高度3.8 米;伊朗“沙赫德-149”(攻击无人机)机长10米,翼展21米,高度4米;美国空军QF-4(靶机)机长15米,翼展9.45m。
多旋翼无人机多存在于民用无人机,例如运输无人机中微型运输无人机(载重500g以内)尺寸长6~20厘米,宽15厘米,高10厘米,翼展通常不超过60厘米;MQ-AL4农业植保无人机翼展外型尺寸为1.21米。、
而无人机产业园根据不同类型无人机的生产需求,会配置相应的特殊功能设施,例如:
飞行区需求:需配备长跑道及开阔空域,测试区需远离人口密集区;
生产车间:组装线侧重气动结构(如机翼、机身连接),调试区需模拟高速飞行环境;
仓储特点:大尺寸部件存储需高空间利用率,如机翼分段存放;
多旋翼无人机产业园场地要求:
空间集约化:测试区要求低(室内即可),适合城市近郊布局,设置多个小型起降平台;
生产车间:模块化组装线,强调电调、电机调试,需防静电环境;
产业链整合:可结合教育培训区,快速培养操作人员;
垂直起降无人机产业园场地要求:
混合功能区:需兼顾垂直起降场与常规跑道,适应复杂飞行测试;
车间安全设计:旋翼调试区需隔离噪音,配备抗扰流设备;
配套服务:强化维修保障区,应对高载荷损耗;
净空条件良好区域:障碍物高度不得超过进场表面斜率1:7;
复杂场景区域:设置无障碍空间锥体,锥顶角45度;
以北京中关村延庆无人机产业园为例,园区占地55.2万平方米,建筑面积达28.7万平方米,其中一期总投资3.9亿元,总用地面积达1.74万平方米,规划总建筑面积4.46万平方米,主体由4栋研发智造空间构成,主要涉及的机型为工业级无人机、消费级与行业级无人机,涵盖复合翼、多旋翼等多种机型,在设计上,项目充分考虑了无人机研发制造的重型需求,规划了宽度最大可达2.4米的核心货运通道,确保大型设备和产品能够顺畅运输。
尤为引人注目的是,为满足无人机试飞需求,项目将在西侧毗邻的城市公园内专门设置两处尺寸为26米×48米的专属室外试飞场,这一深度适配无人机产业独特属性的设计,无疑将为入驻企业提供极大的便利,重点围绕工业级、军用级无人机产业领域,打造无人机产业科技成果转化基地等。
延庆低空依托八达岭通航机场,拥有374平方公里独立空域,真高1098米,可在保障首都低空安全的情况下发展低空产业。


(中关村延庆无人机产业园)

(中关村延庆无人机产业园1号厂房)
(无人机室外试飞区域)
以江西省共青城低空经济产业园无人机生产制造中心为例,项目规划建设5层标准厂房、物流仓库、生产研发中心及无人机测试检验中心等主体建筑,总建筑面积约23万平方米。配套建设员工宿舍、食堂等生活服务设施,形成集研发制造、仓储物流、测试检验与生活服务于一体的综合产业园区。其中无人机测试检验中心配备全气候仿真实验室和抗干扰试验场等专业设施,项目按照“智库+基金+园区+研究院+中试基地”模式建设,总投资50亿。
园区生产主要涵盖复合翼、多旋翼等多种机型,如垂直起降复合翼无人机、多旋翼重载无人机、大载重货运无人机、电动垂直起降飞行器(eVTOL),涉及的机型较多,因此对场地要求以及空间要求也比较多。

(共青城低空经济产业园无人机生产制造中心)
无人机生产除了对园区布置有不同需求以外,不同大小的无人机,对生产车间单体建筑的柱距、跨度、层高、总高度、以及荷载要求也不尽相同。
以翼展20米,机长14米,高度4米的固定翼无人机为例。
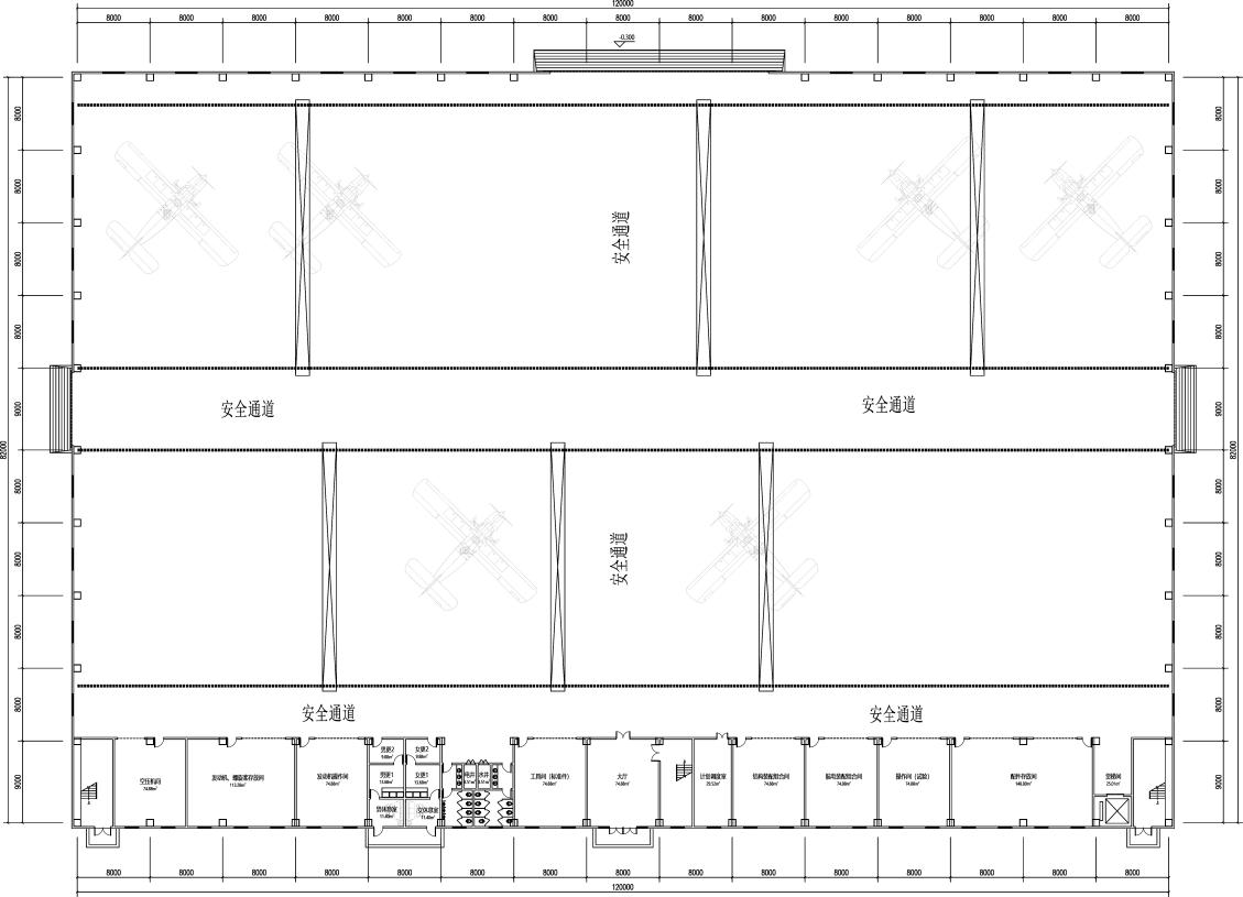
常规总装车间平面布置功能区域划分:
组装区:用于无人机的各个部件的组装工作,应配备相应的工作台、工具架和储物柜,确保组装过程的顺利进行。
调试区:用于无人机的系统调试、飞行测试等,应配备专业的调试设备和测试环境,确保无人机在出厂前达到最佳性能。
仓储区:用于存放无人机的零部件、成品等,应合理规划货架、货位,方便存取和管理。辅助区:包括休息区、更衣室、洗手间等,为工作人员提供必要的辅助设施。
安全通道与疏散路线:车间内应设置明显的安全通道和疏散路线,确保在紧急情况下人员能够迅速撤离,如图:


以俄罗斯鞑靼斯坦叶拉布加无人机工厂为例,园区配备了金属铸造厂、铁匠铺和内部装配线,与国内不同的是金属部件由园区内铸造生产。


(俄罗斯阿拉布加地区无人机工业园区厂房内部)
通过以上案例,我们总结出无人机产业园区与无人机生产车间的规划需遵循三大共性原则:
(1)空间适配性:根据机型特性设计场地,固定翼需长跑道与开阔空域,多旋翼侧重垂直起降区,垂直起降固定翼需复合型空间,同时预留扩展弹性。
(2)功能模块化:生产车间需兼容多机型装配(如机翼模块化产线),并配置高精度调试设备(如陀螺仪校准台)和标准化仓储区(如锂电池防爆仓)。
(3)安全与协同性:独立试飞区需配备气象监测与避障系统,产业链布局强调“研-产-测-服”紧密衔接,缩短供应链半径,提升响应效率。
无论是哪一种平台构型的无人机产业园,在规划过程中,都应做到智慧园区需整合研发、生产、测试功能,采用生态化设计,综合考虑无人机生产标准化流程,生产车间均需明确组装-调试-检测动线,确保效率与安全。以此为基准,结合不同类型无人机在生产、测试、储存的独特需求,对每一个产业园进行专属的定制化设计。
《赛宁创新(成都)》